
Das Gebäude
Diese gepflegte Ein- / Zweifamilienhaus besticht durch ihre klassische Bauweise und die freundlich renovierte Fassade, die dem Haus einen zeitlosen Charakter verleiht. Das Gebäude aus den fünfziger Jahren wurde im Laufe der Zeit umfassend modernisiert und präsentiert sich heute in einem soliden und einladenden Zustand. Große Fenster sorgen für helle, wohnliche Räume, die mit ihrer angenehmen Atmosphäre überzeugen und ein gemütliches Zuhause schaffen.
Die Doppelhaushälfte liegt ruhig am Kesselrand von Stuttgart-Büsnau und bietet mit ihrem weitläufigen Garten ideale Bedingungen für erholsame Stunden im Grünen. Ein großzügiger Kellerbereich, zusätzliche Abstellflächen sowie eine praktische Gartenhütte ergänzen das Haus sinnvoll und schaffen viel Platz für Alltag, Hobbys und Arbeitsbereiche. Insgesamt verbindet das Gebäude solide Substanz mit modernen Akzenten und bietet ein Wohnumfeld, das Komfort und Ruhe harmonisch vereint.
Das Haus
bietet zwei separate Wohneinheiten, die modernen Komfort und flexible Nutzungsmöglichkeiten verbinden. Die Erdgeschosswohnung ist hell und einladend gestaltet, mit einem großzügigen Wohnbereich, einer funktionalen Küche und direktem Zugang zum weitläufigen Garten, der zusätzlichen Raum zum Entspannen bietet.
Die zweite Wohnung erstreckt sich über die oberen Etagen und verfügt über mehrere gut geschnittene Zimmer, die sich ideal als Schlaf-, Arbeits- oder Hobbyräume eignen. Während der obere Bereich noch Raum für persönliche Gestaltung lässt, präsentiert sich die modernisierte Erdgeschosswohnung bereits in einem sehr guten Zustand.
Ideal für Familien, Mehrgenerationenwohnen oder Paare, die ein variables Zuhause mit viel Platz und angenehmer Atmosphäre suchen.

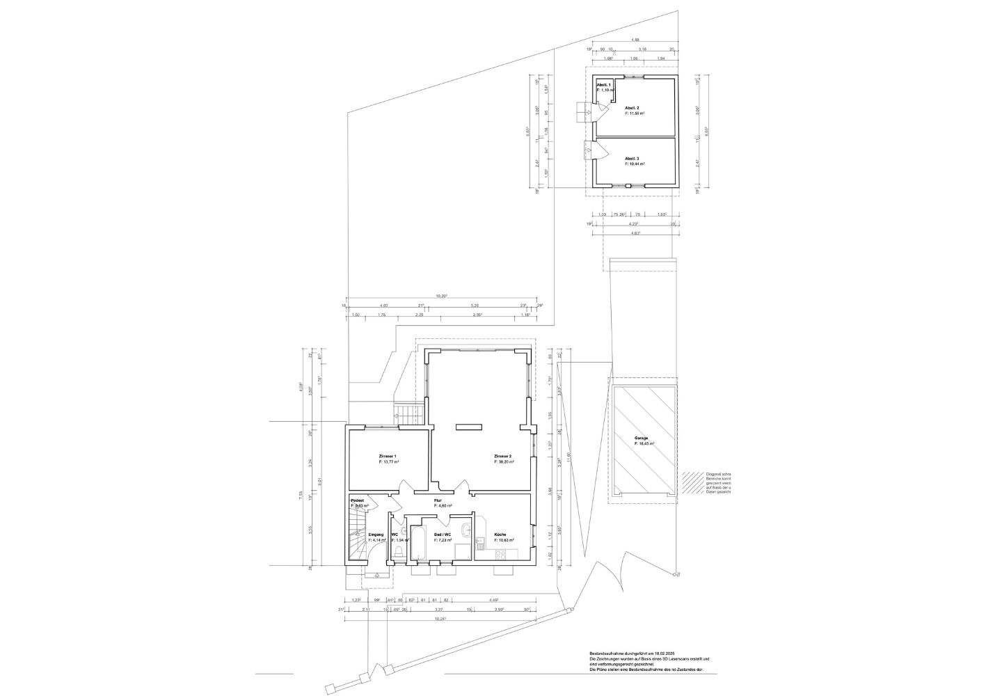
Rundgang durch die Immobilie
Die Fakten im Überblick
172m²
Lage
Stuttgart-Büsnau
Die genaue Adresse finden Sie im Exposé
Stuttgart-Büsnau bietet eine hervorragende Lage für alle, die sowohl die Nähe zur Stadt als auch zur Natur schätzen. Der Stadtteil liegt am Kesselrand im Westen Stuttgarts, wodurch die Innenstadt in weniger als 20 Minuten erreichbar ist. Auch Vaihingen, mit seinen zahlreichen Einkaufsmöglichkeiten und Verkehrsanbindungen, lässt sich in kurzer Zeit erreichen, was den Stadtteil besonders für Pendler attraktiv macht.
Darüber hinaus profitieren die Bewohner von Büsnau von der Nähe zu wichtigen Einrichtungen wie dem Max-Planck-Forschungszentrum und der Universität Stuttgart. Dies sorgt für eine ausgezeichnete Anbindung an den öffentlichen Nahverkehr und macht den Stadtteil sowohl für Studierende als auch Berufstätige interessant.
Gleichzeitig überzeugt Büsnau durch seine naturnahe Umgebung. Die umliegenden Wälder, Parks und die malerischen Bärenseen laden zu ausgedehnten Spaziergängen, Radtouren oder einfach zur Entspannung ein. So entsteht eine harmonische Balance zwischen städtischem Komfort und grüner Ruhe, die den Stadtteil besonders lebenswert macht.
Büsnau vereint somit das Beste aus Stadt- und Landleben. Zahlreiche Cafés, Restaurants und kleine Geschäfte bieten Abwechslung, während die gepflegten Grünanlagen und ruhigen Straßen Raum für Erholung schaffen. Familien, Singles und Paare finden hier gleichermaßen ein Zuhause mit hoher Lebensqualität, kurzen Wegen zu Schulen und Einkaufsmöglichkeiten und vielen Freizeitangeboten.
Haben wir Ihr Interesse geweckt?
Haben wir Ihr Interesse geweckt?
Sie sind auch auf der Suche oder möchten verkaufen?
Sie sind auch auf der Suche oder möchten vermieten?

Tobias Troendle
Ich werde mich schnellstmöglich bei Ihnen melden.















